2026年04月04日時点
販売中
| 価格 | 4,390万円 | ||
| 住所・最寄り駅 | 川越市今成2丁目 東武東上線 川越市駅 徒歩23分 |
||
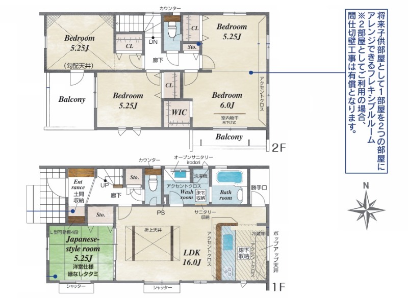
| 間取り/間取り詳細 | 4LDK LDK16.0帖 / 和室5.25帖 / 洋室11.25帖 / 洋室5.25帖 / 洋室5.25帖 | 築年月 | 2026年3月 |
| 建物面積/土地面積 | 104.2㎡/145.5㎡ | 階数 | 地上2階 |
耐震構造
免震構造
制震構造
住宅性能評価付き
長期優良住宅
トイレ2か所
駐車場2台以上
24時間換気システム
TVモニタ付インターホン
間取り変更可能
和室
リビングダイニング15畳以上
対面キッチン
システムキッチン
食器洗い乾燥機
給湯
浴室乾燥機あり
追い焚き
バス・トイレ別
洗濯機置き場
独立洗面台
シャワートイレ
シャンプードレッサー
2面以上バルコニー
ウォークインクローゼット
床下収納
クローゼットシューズボックス
フローリング
| 住所 | 川越市今成2丁目 | ||
| 交通機関 | 東武東上線 川越市駅 徒歩23分 | ||
| 間取り/間取り詳細 | 4LDK / LDK16.0帖 / 和室5.25帖 / 洋室11.25帖 / 洋室5.25帖 / 洋室5.25帖 | ||
| 建物面積 | 104.2㎡ | 土地面積 | 145.5㎡ |
| 計測方法 | 登記 | ||
| 主要採光面 | 建物構造 | 木造 | |
| 都市計画 | 市街化区域 | ||
| 階数 | 地上2階 | 築年月 | 2026年3月 |
| 築年月備考 | |||
| 設備・条件 | 耐震構造/免震構造/制震構造/住宅性能評価付き/長期優良住宅/トイレ2か所/駐車場2台以上/24時間換気システム/TVモニタ付インターホン/間取り変更可能/和室/リビングダイニング15畳以上/対面キッチン/システムキッチン/食器洗い乾燥機/給湯/浴室乾燥機あり/追い焚き/バス・トイレ別/洗濯機置き場/独立洗面台/シャワートイレ/シャンプードレッサー/2面以上バルコニー/ウォークインクローゼット/床下収納/クローゼットシューズボックス/フローリング/ | ||
| 水道 | 公営水道・本下水 | ガス | 都市ガス |
| 土地権利 | 所有権のみ | セットバック | |
| 接道状況 | 三方 | ||
| 接道1 | 北側 公道 幅員4.0m | ||
| 接道2 | 南側 公道 幅員 4.0m | ||
| 地目 | 宅地 | 用途地域 | 第一種低層住居専用地域 |
| 建ぺい率 | 50% | 容積率 | 80% |
| 引渡 | 相談 | 地勢 | |
| 現況 | 空家 | 国土法届出 | 不要 |
| 取引形態 | 仲介 | 物件管理コード | 2026012402 |
| 備考・特記事項 | 盛土規制、都市再生特別措置法。
TVアンテナ(電波障害等によるケーブルTV・共聴アンテナ)の申込はお客様負担となります。 電気供給のため、敷地内に電柱及び支線が入る場合がございます。 図面と現況に相違がある場合、現況優先とします。 司法書士、土地家屋調査士は売主指定です。 |
||
| 問い合わせ先 | 東上住宅 株式会社 | 電話番号 | 049-250-5555 |
| 建築確認番号 | 第25UDI1W建09847号 | ||
会員登録のメリット
①データ連携機能搭載
いつでも、どこでもPCやスマホ、タブレットなどで同じ状況で閲覧いただけます。
②物件比較機能
チェックした物件を様々な条件を並べて比較できますので絞り込みに便利です。
